PROJECT ONE: SKETCHBOOK AND JOURNAL
THIS IS A PROJECT WHICH WE HAVE TO SKETCH, DOCUMENT AND ANALYSE THE PHYSICAL AND INTANGIBLE QUALITIES OF THE BUILDING BEING MEASURED AS WELL AS THE IMMEDIATE CONTEXT OF THE SITE.
Project 2 Measured Drawings and Model
Scale 1:100 Model Using Balsa Wood, Fully Handmade, Half Skeletal to Show The Structure of The Building.
Model in Progress 01
Model in Progress 02
Model in Progress 03
Model in Progress 04
Model in Progress 05
Model in Progress 06
Model in Progress 07
Model in Progress 08
Lecturers checking on the model
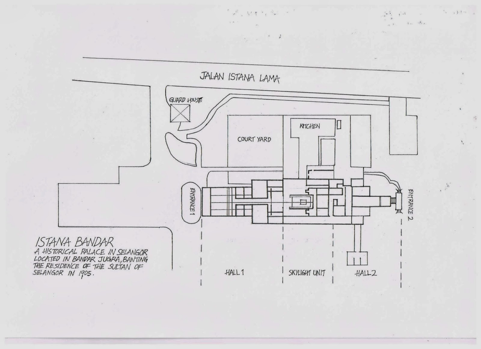
Building Name: Istana Bandar Jugra
Completed Model 01
Completed Model 02
Completed Model 03
Model Being Exhibited
Istana Bandar Jugra Report Book
Photobook Link : http://issuu.com/jessielyee/docs/istana_bandar_jugra_photobook
Website Link : http://www.i-m.co/conielim/istanabandarjugra/
The subject aims to develop an understanding of the principles of building preservation and the method of recording it in three documentation methods; measured drawings, written documentation and photographic documentation. The ideas of application and management of architectural historic documentation will be presented as part of the overall knowledge of building preservation. For measured drawings, students are to document historically and architecturally significant buildings in the form of as-built drawings. The task requires 10 to 20 students per group that involve field works consisting measuring technique such as photographing, 20 sketches, use of theodolite and measuring tape. The outcomes of the subject are collections of plans, sections, elevations, details and axonometric views/models; complemented with a report that explains about the background, history, concept, style, construction and ornamentation of buildings.
Group Photo !!
Website Link : http://www.i-m.co/conielim/istanabandarjugra/
The subject aims to develop an understanding of the principles of building preservation and the method of recording it in three documentation methods; measured drawings, written documentation and photographic documentation. The ideas of application and management of architectural historic documentation will be presented as part of the overall knowledge of building preservation. For measured drawings, students are to document historically and architecturally significant buildings in the form of as-built drawings. The task requires 10 to 20 students per group that involve field works consisting measuring technique such as photographing, 20 sketches, use of theodolite and measuring tape. The outcomes of the subject are collections of plans, sections, elevations, details and axonometric views/models; complemented with a report that explains about the background, history, concept, style, construction and ornamentation of buildings.
Group Photo !!




































No comments:
Post a Comment